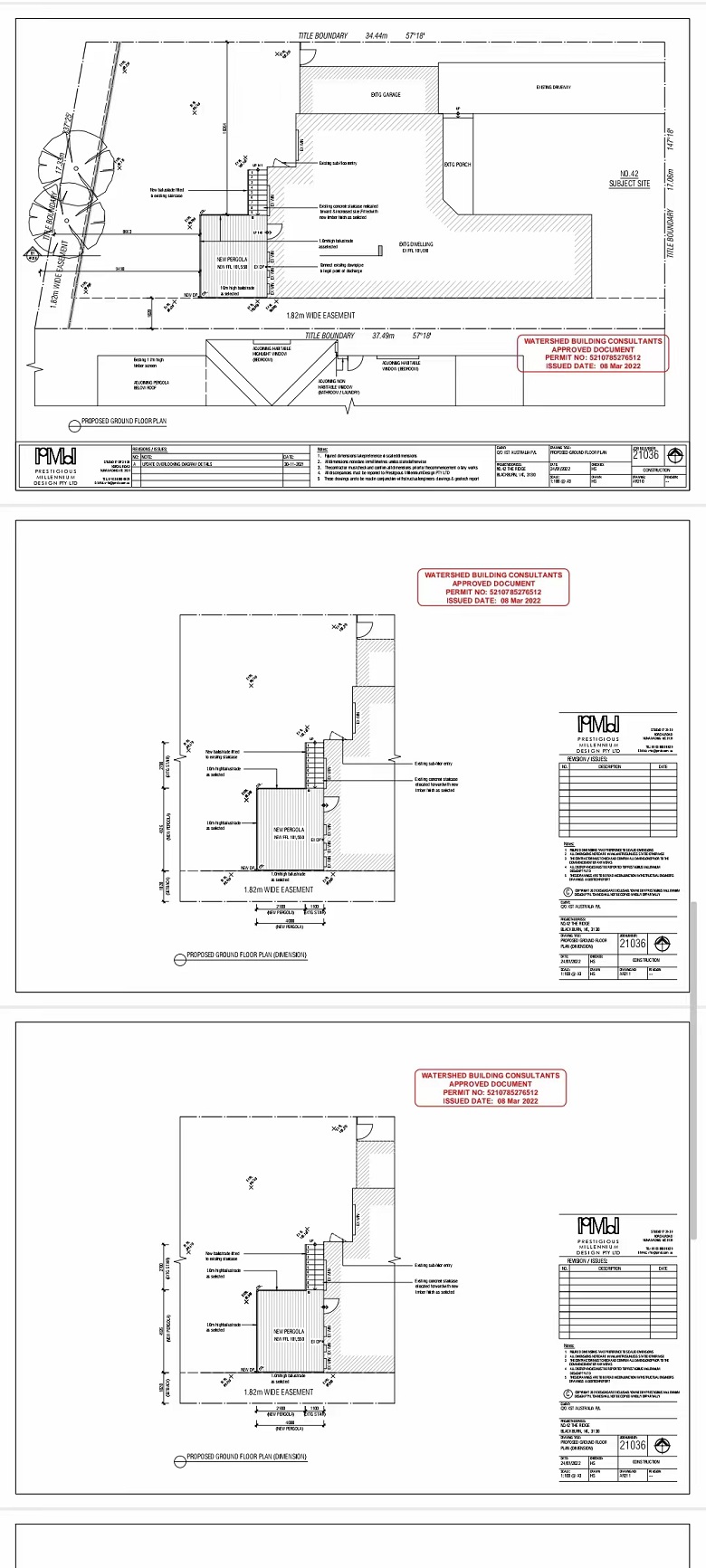
墨尔本带许可批文户外防腐木240X45高平台框架,10阶台阶,围栏一体小门,塑木140X22空心面板。
2023/4/4 11:33:12 点击:
墨尔本带许可批文户外防腐木240X45高平台框架,10阶台阶,围栏一体小门,塑木140X22空心面板。








- 上一篇:墨尔本木结构凉棚,雨棚,架房顶结构,户外地板,实木地板,90 2023/4/12
- 下一篇:墨尔本带许可 190x45防腐处理木底部框架,水泥顶柱,户外 2023/3/28
墨尔本带许可批文户外防腐木240X45高平台框架,10阶台阶,围栏一体小门,塑木140X22空心面板。







